Waalstraat 71, 3522 SC Utrecht

Omschrijving

CHARMANTE & VERZORGDE JAREN '30 TUSSENWONING (CA. 85 M2, ENERGIELABEL C) MET 5 KAMERS, RUIME ACHTERTUIN, OPEN KEUKEN EN MODERNE BADKAMER GELEGEN IN DE POPULAIRE RIVIERENWIJK OP KORTE AFSTAND VAN HET CENTRUM
Deze sfeervolle tussenwoning is centraal gelegen in de Riverenwijk, een van de meest gewilde wijken van Utrecht. De populariteit van deze wijk laat zich vrij eenvoudig verklaren. Hier combineer je een gemoedelijke woonomgeving met veelal vooroorlogse gezinswoningen met een groot aanbod aan lokale detailhandel, gezellige (dag)horeca en andere dagelijkse voorzieningen. Daarnaast bereik je binnen enkele minuten, lopend of op de fiets, het gezellige Utrechtse stadcentrum alsmede het centraal station.

Dankzij de efficiënte indeling en optimale gebruik van de mogelijkheden biedt deze woning de ruimte voor jarenlang woonplezier. Zo omvat de woning momenteel een ruime woonkamer met open (moderne) keuken die ruimte biedt aan een grote eettafel van 2m20. Aan de voorzijde is een fijne zithoek gecreëerd met plaats voor een royale zitbank. Vanuit de eetkamer bereik je de heerlijke en ruime stadstuin met houten berging via een schuifpui. Vanuit de hal, waar ook het verzorgde toilet zich bevindt, vind je de trapopgang naar de eerste verdieping die is ingedeeld met drie, meer dan bruikbare, slaapkamers en een verzorgde en moderne badkamer. Deze is voorzien van verzorgd tegelwerk, inloopdouche en wastafelmeubel. Door het plaatsen van een dakkapel op de tweede verdieping is er een mooie extra ruimte ontstaan die voor verschillende doeleinden geschikt kan zijn. Denk hierbij aan een slaap- of logeerkamer of anders aan een thuiskantoor of hobbyruimte.

Ben jij op zoek naar een charmante en goed onderhouden woning? Op fijne afstand van de stad met de ruimte voor jarenlang woonplezier? Maak direct een afspraak voor een bezichtiging!

DUURZAAMHEID & ENERGIELABEL
De woning is bijna volledig voorzien van dubbele beglazing (deels HR++). Daarnaast is er dakisolatie aanwezig en is de vloer in 2024 geïsoleerd met glaswol. Het energielabel is C en is geldig tot februari 2036. ln het laatste volledige jaar is door dit huishouden slechts 642 m3 aan gas verbruikt, hetgeen aanzienlijk lager is dan het gemiddelde.

DE OMGEVING
De Waalstraat ligt centraal in de populaire Rivierenwijk. Alle dagelijkse voorzieningen zijn op loopafstand: meerdere supermarkten, een slager, bakker en diverse basisscholen en kinderdagverblijven bevinden zich in de directe omgeving. Rond de watertoren bij Rotsoord vind je gezellige horeca, waar je heerlijk aan het water kunt zitten. Ook is er een kinderboerderij in de buurt, ideaal voor jonge kinderen.
Daarnaast is er volop groen in de omgeving. Op korte afstand liggen het Merwedekanaal en diverse plantsoenen waar je kunt wandelen, hardlopen of ontspannen aan het water. Ook het populaire Park Transwijk en Amelisweerd zijn gemakkelijk per fiets bereikbaar, perfect voor een langere wandeling, picknick of sportieve activiteit in het groen.
Binnen vijf minuten fietsen sta je op het Ledig Erf en rijd je zo de binnenstad in. Openbaar vervoer is uitstekend geregeld met station Vaartsche Rijn en Utrecht Centraal op korte afstand.
Parkeren kan voor de deur, zowel betaald als met een parkeervergunning.
De Waalstraat zal dit jaar heringericht worden naar een 30km/u weg, waar voetgangers en fietsers meer ruimte zullen krijgen.

INDELING & VOORZIENINGEN
Begane grond
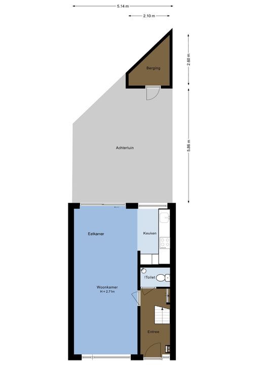
Via de entree kom je in de hal, waar zich de meterkast en een verzorgd toilet bevinden. De royale woonkamer is heerlijk licht dankzij de grote raampartijen aan de voorzijde en de brede schuifpui aan de achterzijde, die binnen en buiten naadloos met elkaar verbindt. Hierdoor geniet je hier de hele dag van een fijne lichtinval en een open, ruimtelijk gevoel.
De moderne half open keuken is uitgevoerd met een stijlvol kookeiland en voorzien van diverse inbouwapparatuur, waaronder een gasfornuis, oven en een afzuigsysteem. Een perfecte plek om te koken én gezellig samen te komen.
Vanuit de woonkamer stap je zo de ruime tuin in, gelegen in een unieke punt. De tuin biedt volop privacy en ruimte om meerdere zitplekken te creëren. Achterin bevindt zich een praktische schuur met extra bergruimte, ideaal voor fietsen en tuinspullen.

Eerste verdieping
Op de eerste verdieping bevindt zich de overloop met toegang tot alle vertrekken. Aan de voorzijde ligt een ruime hoofdslaapkamer. Aan de achterzijde bevinden zich nog twee slaapkamers, perfect als kinder-, werk- of logeerkamer. De badkamer is modern, functioneel en compleet, uitgerust met een douchecabine, wastafel en aansluiting voor de wasmachine.

Tweede verdieping
Via een vaste trap bereik je de ruime zolderverdieping met daglicht en de opstelling van de CV-combiketel. Deze verdieping is voorzien van een dakkapel, wat zorgt voor extra licht en ruimte. Verder heb je vanuit de zolder prachtig uitzicht op de oude buurtkerk, de Sint-Gertrudiskerk. Hierdoor is de zolder uitstekend geschikt als volwaardige extra slaapkamer, thuiswerkplek of hobbyruimte.

KENMERKEN & BIJZONDERHEDEN
• Woonoppervlak ca.: 85 m²;
• Perceeloppervlak ca.: 75 m² (eigen grond);
• Aantal kamers: 5 (waarvan 4 slaapkamers);
• Bouwjaar: 1931;
• Warm water en verwarming middels Cv-ketel (Remeha Avanta 35C, 2020);
• Woning is bijna volledig voorzien van dubbel beglazing (deels HR++), vloer- en dakisolatie, energielabel; C, geldig tot februari 2036;
• Goed gesitueerd ten opzichte van uitvalswegen en op korte afstand van het centrum en centraal station;
• Achtertuin op het noordoosten en voorzien van berging;
• Betaald parkeren of met vergunning op de openbare weg;
• Oplevering in overleg.

Kenmerken

Overdracht

Prijs
€ 525.000 k.k.
Status
Beschikbaar
Oplevering
In overleg

Bouw

Soort woonhuis
Eengezinswoning, Tussenwoning
Soort bouw
Bestaande bouw
Bouwjaar
1931
Onderhoud binnen
Goed
Onderhoud buiten
Goed

Oppervlakten en inhoud

Woonoppervlakte
85m²
Perceeloppervlakte
75m²
Inhoud
306m³

Indeling

Aantal kamers
5
Aantal slaapkamers
4
Aantal badkamers
1
Aantal verdiepingen
3
Voorzieningen
Mechanische ventilatie, TV-Kabel, Glasvezel kabel, Natuurlijke ventilatie

Energie

Energielabel
C
Isolatie
Dakisolatie, Vloerisolatie, Dubbel glas
Warm water
C.V.-ketel
Verwarming
C.V.-ketel
Ketel
Remeha Avanta 35C (2020, Combi-ketel, Eigendom)

Buitenruimte

Ligging
In woonwijk
Tuin
Achtertuin
Schuur
Vrijstaand hout

Plattegronden

Interesse in deze woning?
Stel een vraag of maak een bezichtigingsafspraak.

Uw bericht is naar ons verzonden. Wij nemen zo snel mogelijk contact met u op.

Sorry, we kunnen helaas niet met zekerheid vaststellen of je een mens of een geautomatiseerde bot/spammer bent. Hierdoor kunnen we het formulier dat je hebt ingevuld niet verzenden. Probeer het opnieuw of neem direct contact op met de makelaar via e-mail.

Er is iets mis gegaan met het versturen van het formulier.
Controleer of u alle velden (goed) heeft ingevoerd en probeer het nog een keer.

recaptcha
reCAPTCHA
PrivacyTerms

Vergelijkbare woningen

Filipijnen 79, Utrecht
€ 550.000 k.k.
  • Tussenwoning
  • 97m²
  • 4
Geleenstraat 5, Utrecht
€ 485.000 k.k.
  • Tussenwoning
  • 65m²
  • 3
van

Goedenavond 👋

Benieuwd naar de waarde van jouw huis?

Je weet het in 1 minuut. Laten we beginnen!

Wat is de reden van jouw aanvraag?
Ik wil graag...

Er zijn meerdere antwoorden mogelijk.

Wanneer wil je verhuizen?

We zijn er bijna 🎉

Om het rapport op te maken hebben we een aantal gegevens nodig

recaptcha
reCAPTCHA
PrivacyTerms

Jouw woningwaarde wordt berekend... 🚀

loading

Bedankt %name%! De woningwaarde van %address% is berekend 🥳

Check je mail voor het rapport!

success
Wat is mijn huis waard?