Geleenstraat 5, 3522 XR Utrecht

Omschrijving

CHARMANTE & VERZORGDE TUSSENWONING (CA. 65 M2) MET 4 KAMERS, ZONNIGE ACHTERTUIN MET BERGING EN MODERN AFWERKINGSNIVEAU GELEGEN OP EEN GEZELLIGE PLEK IN DE POPULAIRE RIVIERENWIJK
Deze sfeervolle en gezellige tussenwoning heeft een bijzondere efficiënte indeling en is in de afgelopen jaren met zorg bewoond en onderhouden. De oorsprong van de woning ligt rond 1919 en de karakteristieke uitstraling van die tijd is gelukkig bewaard gebleven. Voor wie op zoek is naar een comfortabele en charmante woning in een gezellige wijk nabij het centrum is dit een unieke kans.

De Rivierenwijk is momenteel een van de meest gewilde wijken van Utrecht en dat laat zich eenvoudig verklaren. Ondanks de korte afstand tot het historische centrum van Utrecht en goede ligging ten opzichte van OV (CS & Station Vaartsche Rijn) is het een gemoedelijke gezinswijk met in de directe omgeving van de woning voornamelijk laagbouw. Er is een grote diversiteit aan scholen en speelplaatsen. Maar wie op zoek is naar ontspanning vindt mooie wandelroutes langs het Merwedekanaal of vindt een heerlijk plekje op een van de terrassen bij Rotsoord of op het Ledig Erf.

Dankzij de eerder genoemde efficiëntie met betrekking tot het gebruik van ruimte en een praktische indeling zal de woning ruimer aanvoelen dan je op basis van de woonoppervlakte zult vermoeden. Momenteel omvat de woning een ruime en gezellige woonkamer op de begane grond met een half open keuken. Vanuit de keuken bereik je de ruime achtertuin met goede zonligging (west) en berging. Op de eerste verdieping zijn maar liefst drie slaapkamers aanwezig van verschillende formaten. Daarnaast is er een moderne badkamer aanwezig die ca. 5 jaar geleden volledig is vernieuwd.

Kortom een zeer verzorgde woning met de juiste sfeer en indeling. Daarnaast bereik je via een handomdraai de binnenstad van Utrecht om te kunnen genieten van alles wat het stadse leven zo aangenaam maakt. Maak direct een afspraak voor een bezichtiging zodat je dit gezellige huis zelf kunt ervaren.

DUURZAAMHEID & ENERGIELABEL
De woning beschikt over een energielabel D en is is geldig tot november 2035. In het laatste volledige jaar heeft dit huishouden van 3 personen slechts 869 m3 aan gas verbruikt, hetgeen flink lager is dan het gemiddelde. De woning is volledig voorzien van isolerende beglazing alsmede voorzien van dak-, muur- en vloerisolatie. De woning is voorzien van 4 zonnepanelen, geplaatst in 2023. Verder beschikt de woning over twee airconditioning systemen in de woonkamer en slaapkamer.

DE OMGEVING
Deze leuke woning is gelegen aan de Geleenstraat, een rustige straat in Rivierenwijk. Voor de dagelijkse boodschappen vind je alle nodige winkels in de nabije omgeving. Zowel de Rijnlaan en Vondellaan bieden een ruim aanbod aan de grotere winkelketens als de lokale specialisten. Daarnaast vind je ook steeds meer gezellige (dag)horeca in de omgeving voor een gezellige kopje koffie of glaasje wijn. Qua bereikbaarheid is dit een goede uitvalsbasis. Binnen een paar minuten zit je met de auto op snelwegen zoals de A12/A2 en A27/28 en fiets je binnen 5 minuten naar het Centraal Station & Vaartsche Rijn.

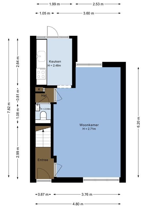
INDELING & VOORZIENINGEN
Begane grond:
Via de entreehal, voorzien van vernieuwde meterkast, bereik je de woonkamer.
De ruime woonkamer is voorzien van een laminaatvloer en biedt plaats voor een fijne zithoek en eetgedeelte. De keuken is aan de achterzijde gelegen en is voorzien van diverse inbouwapparatuur zoals een koelkast, combimagnetron/ oven, vaatwasser en inductieplaat met afzuigschouw. De vloer van de keuken is voorzien van mozaïekpatroon. Tevens tref je hier de C.V.-ketel (Intergas 2011). Vanuit de keuken is de achtertuin bereikbaar.

Buiten:
De achtertuin, voorzien van berging, is fraai aangelegd en gelegen op het westen wat inhoud dat je vanaf de ochtend tot laat in de avond de zon zult vinden.

Verdieping:
Via de overloop heb je toegang tot de drie slaapkamers en de badkamer. Alle drie de slaapkamers zijn voorzien van een verzorgde laminaatvloer. De moderne badkamer is voorzien van een wastafelmeubel, inloopdouche, ligbad en een tweede toilet. Op de overloop heb je toegang tot de bergzolder middels een vlizotrap.

KENMERKEN & BIJZONDERHEDEN
• Woonoppervlak ca.: 65m²;
• Perceeloppervlak ca.: 75 m² (eigen grond);
• Aantal kamers: 4 (waarvan 3 slaapkamers);
• Bouwjaar: 1919;
• Warm water en verwarming middels Cv-ketel;
• Energielabel D (geldig tot november 2035);
• Goed gesitueerd ten opzichte van uitvalswegen en op korte afstand van het centrum en centraal station;
• Achtertuin op het westen waardoor er vrijwel de hele dag plek in de zon te vinden is (achtertuin voorzien van berging);
• Betaald parkeren of met vergunning op de openbare weg;
• Oplevering in overleg.

Kenmerken

Overdracht

Prijs
€ 485.000 k.k.
Status
Beschikbaar
Oplevering
In overleg

Bouw

Soort woonhuis
Eengezinswoning, Tussenwoning
Soort bouw
Bestaande bouw
Bouwjaar
1919
Onderhoud binnen
Goed
Onderhoud buiten
Goed

Oppervlakten en inhoud

Woonoppervlakte
65m²
Perceeloppervlakte
75m²
Inhoud
234m³

Indeling

Aantal kamers
4
Aantal slaapkamers
3
Aantal badkamers
1
Aantal verdiepingen
2
Voorzieningen
Mechanische ventilatie, TV-Kabel, Airconditioning, Glasvezel kabel, Zonnepanelen

Energie

Energielabel
D
Isolatie
Dakisolatie, Muurisolatie, Vloerisolatie, Gedeeltelijk dubbel glas
Warm water
C.V.-ketel
Verwarming
C.V.-ketel
Ketel
Intergas (2011, Combi-ketel, Eigendom)

Buitenruimte

Tuin
Achtertuin
Achtertuin
West, 35m², 500×700cm
Schuur
Vrijstaand steen

Plattegronden

Interesse in deze woning?
Stel een vraag of maak een bezichtigingsafspraak.

Uw bericht is naar ons verzonden. Wij nemen zo snel mogelijk contact met u op.

Sorry, we kunnen helaas niet met zekerheid vaststellen of je een mens of een geautomatiseerde bot/spammer bent. Hierdoor kunnen we het formulier dat je hebt ingevuld niet verzenden. Probeer het opnieuw of neem direct contact op met de makelaar via e-mail.

Er is iets mis gegaan met het versturen van het formulier.
Controleer of u alle velden (goed) heeft ingevoerd en probeer het nog een keer.

recaptcha
reCAPTCHA
PrivacyTerms

Vergelijkbare woningen

Jutfaseweg 173, Utrecht
€ 389.000 k.k.
  • Maisonnette
  • 56m²
  • 1
Filipijnen 79, Utrecht
€ 550.000 k.k.
  • Tussenwoning
  • 97m²
  • 4
Waalstraat 71, Utrecht
€ 525.000 k.k.
  • Tussenwoning
  • 85m²
  • 4
van

Goedenavond 👋

Benieuwd naar de waarde van jouw huis?

Je weet het in 1 minuut. Laten we beginnen!

Wat is de reden van jouw aanvraag?
Ik wil graag...

Er zijn meerdere antwoorden mogelijk.

Wanneer wil je verhuizen?

We zijn er bijna 🎉

Om het rapport op te maken hebben we een aantal gegevens nodig

recaptcha
reCAPTCHA
PrivacyTerms

Jouw woningwaarde wordt berekend... 🚀

loading

Bedankt %name%! De woningwaarde van %address% is berekend 🥳

Check je mail voor het rapport!

success
Wat is mijn huis waard?