Veilinghavenkade 151, 3521 AT Utrecht

Omschrijving

COMFORTABEL & VERZORGD (MAISONETTE) APPARTEMENT (CA. 67 M2, ENERGIELABEL A) MET RUIME WOONKAMER EN (ZONNIG) BALKON MET WAANZINNIG UITZICHT OP DE VEILINGHAVEN GELEGEN OP KORTE AFSTAND VAN HET CENTRUM
Dit verzorgde, duurzame en goed onderhouden appartement is gelegen op een van de mooiste locaties in een van de gewilde wijken van Utrecht; de Dichterswijk. De populariteit van deze wijk laat zich eenvoudig omschrijven. Naast de rustige en
gemoedelijke sfeer die er heerst zijn alle dagelijkse voorzieningen, alsmede het Centraal Station, binnen enkele minuten bereikbaar. Ook de uitvalswegen zijn met de auto snel bereikbaar en heb je de beschikking over een eigen parkeerplaats in de onderbouw. Binnen tien minuten bereik je lopend de leukste en gezelligste stukjes in het centrum van Utrecht, wat wil je nog meer?

De woning zelf laat ook weinig te wensen over en beschikt over alle facetten voor een vele jaren woonplezier. Tijdens de bouw in 2006 is het complex opgetrokken uit hoogwaardige en duurzame materialen. De woning beschikt over een eigen entree op straatniveau die grenst aan de semi-openbare binnentuin die vanuit de actieve VVE netjes wordt onderhouden. De eigen parkeerplaats en berging bevinden zich in de onderbouw en die bereik je via een gemeenschappelijke hal, zowel per trap als lift.

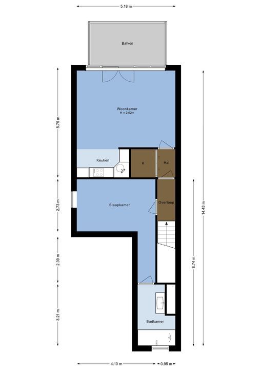
Na binnenkomst vind je enige bergruimte, meterkast, een (gasten)toilet en trapopgang naar de woonverdieping. Dankzij de ligging op de de verdieping heb je een fraai uitzicht direct op de prachtige Veilinghaven met historische schepen. De raampartijen en het royale balkon liggen op het zonnige zuidwesten zodat je gedurende de dag veel zon en lichtinval zult ervaren. De woonkamer is efficiënt ingedeeld en biedt plaats aan een eethoek nabije de keuken in L-opstelling, ruime zithoek en desgewenst een werkplek. De slaapkamer is rustig gelegen en is ruim genoeg voor een tweepersoonsbed en kastenwand. Vanuit de overloop is ook nog de inpandige berging en badkamer bereikbaar. Laatst genoemde is uitgevoerd met een ligbad/douche, wastafelmeubel en verzorgd tegelwerk.

DUURZAAMHEID & ENERGIELABEL
Tijdens de bouw in 2006 is het complex opgetrokken uit hoogwaardige en duurzame materialen en volledig geïsoleerd met onder andere HR++ beglazing. Het energielabel is in aanvraag maar op basis van een eerste indicatie en andere vergelijkbare appartementen in het complex is de verwachting dat het appartement zal worden uitgerust met een energielabel A. Verwarming en warm water middels het warmtenet/stadsverwarming.

DE OMGEVING
De woning bevindt zich tussen het centrum van Utrecht en de nieuwe wijk Merwedekanaalzone, die volop in ontwikkeling is. Rondom het appartement is gezellige kleinschalige horeca te vinden. De Veilinghavenkade ligt direct aan de oude historische haven. In de haven bevinden zich uitsluitend karakteristieke woonschepen. Het oorspronkelijke industriële karakter van de haven is terug te zien in een gerestaureerde loskraan en vier zand- en grindtrechters. Aan de overkant van de haven bevindt zich Villa Jongerius, de recent geheel gerestaureerde monumentale woning met allure van de vooroorlogse ondernemer Jan Jongerius.

Vanaf de woning is het slechts 10 minuten lopen (of 3 minuten fietsen) naar het centraal station waar frequent treinen naar Amsterdam, Rotterdam, Den Haag, Eindhoven, Arnhem en Nijmegen vertrekken. De opritten naar de snelwegen A2, A12 en A27 liggen vlakbij. Met de auto ben je binnen 30 minuten op de Amsterdamse Zuidas. Bovendien hoef je je nooit zorgen te maken over parkeerruimte, want er is een eigen parkeerplaats beschikbaar in de afgesloten parkeerkelder.

INDELING & VOORZIENINGEN
Begane grond:
Binnenkomst in de hal met meterkast, toilet met wastafel en trapopgang naar eerste verdieping.

Eerste verdieping
Via de hal loop je recht de riante en lichte woonkamer/ eetkamer binnen met open keuken. De woning is voorzien van een parketvloer en gestucte wanden. Via de openslaande deuren heb je toegang tot het zonnige balkon, waar je heerlijk kunt genieten en zicht hebt op het water. De open moderne keuken is voorzien van alle mogelijke inbouwapparatuur. Aan de linkerkant van de woning bevindt zich de riante slaapkamer met aangrenzend de badkamer voorzien was een ligbad en wastafelmeubel.

KENMERKEN & BIJZONDERHEDEN
• Woonoppervlak ca.: 67 m²;
• Aantal kamers: 2 (waarvan 1 slaapkamer);
• Bouwjaar: 2006;
• Warm water en verwarming middels stadsverwarming;
• Energielabel is in aanvraag, eerste indicatie wijst naar een label A;
• Goed gesitueerd ten opzichte van uitvalswegen en op korte afstand van het centrum en centraal station;
• Balkon op het zuidwesten waardoor er altijd een plek in de zon én schaduw te vinden is;
• Betaald parkeren of met vergunning op de openbare weg;
• VvE is actief, de servicekosten bedragen thans € 168,- per maand;
• Oplevering in overleg.

Kenmerken

Overdracht

Prijs
€ 450.000 k.k.
Bijdrage VVE
€ 168
Status
Beschikbaar
Oplevering
In overleg

Bouw

Soort appartement
Maisonnette, Appartement
Woonlaag
1
Soort bouw
Bestaande bouw
Bouwjaar
2006
Onderhoud binnen
Goed
Onderhoud buiten
Goed

Oppervlakten en inhoud

Woonoppervlakte
67m²
Inhoud
242m³

Indeling

Aantal kamers
2
Aantal slaapkamers
1
Aantal badkamers
1
Aantal verdiepingen
2
Voorzieningen
Mechanische ventilatie, TV-Kabel, Lift, Glasvezel kabel

Energie

Energielabel
A
Isolatie
Dubbel glas, Volledig geisoleerd
Warm water
Stadsverwarming
Verwarming
Stadsverwarming

Buitenruimte

Ligging
Aan het water, Aan rustige weg, In woonwijk, Vrij uitzicht, Beschutte ligging
Balkon
Ja
Schuur
Inpandig
Faciliteiten schuur
Voorzien van elektra

Garage

Soort garage
Parkeerkelder

Plattegronden

Interesse in deze woning?
Stel een vraag of maak een bezichtigingsafspraak.

Uw bericht is naar ons verzonden. Wij nemen zo snel mogelijk contact met u op.

Sorry, we kunnen helaas niet met zekerheid vaststellen of je een mens of een geautomatiseerde bot/spammer bent. Hierdoor kunnen we het formulier dat je hebt ingevuld niet verzenden. Probeer het opnieuw of neem direct contact op met de makelaar via e-mail.

Er is iets mis gegaan met het versturen van het formulier.
Controleer of u alle velden (goed) heeft ingevoerd en probeer het nog een keer.

recaptcha
reCAPTCHA
PrivacyTerms

Vergelijkbare woningen

Aartsbisschop Romerostraat 217, Utrecht
€ 375.000 k.k.
  • Portiekflat
  • 69m²
  • 2
Opaalweg 87, Utrecht
€ 365.000 k.k.
  • Portiekflat
  • 63m²
  • 2
Cremerstraat 80, Utrecht
€ 519.000 k.k.
  • Tussenwoning
  • 83m²
  • 2
van

Goedemorgen 👋

Benieuwd naar de waarde van jouw huis?

Je weet het in 1 minuut. Laten we beginnen!

Wat is de reden van jouw aanvraag?
Ik wil graag...

Er zijn meerdere antwoorden mogelijk.

Wanneer wil je verhuizen?

We zijn er bijna 🎉

Om het rapport op te maken hebben we een aantal gegevens nodig

recaptcha
reCAPTCHA
PrivacyTerms

Jouw woningwaarde wordt berekend... 🚀

loading

Bedankt %name%! De woningwaarde van %address% is berekend 🥳

Check je mail voor het rapport!

success
Wat is mijn huis waard?