Pablo Picassostraat 506, 3544 NX Utrecht

Omschrijving

ZEER NETTE EN GOED ONDERHOUDEN MAISONNETTEWONING MET ENERGIELABEL A+, EIGEN PARKEERPLAATS, BALKON EN BERGING EN IS GELEGEN IN DE GEWILDE WIJK ’T ZAND-WEST!
Dit ruime en luxe appartement is een unieke kans om wonen en werken te combineren. Het moderne appartement is verdeeld over twee woonlagen en beschikt over maar liefst twee voordeuren! Ideaal om de begane grond te gebruiken als kantoor aan huis, terwijl je op de eerste verdieping je woongedeelte hebt.

In totaal beschikt de woning over vier kamers en een balkon. De hoogwaardige afwerking valt direct op: een prachtige PVC-visgraatvloer, een luxe open keuken met hoogwaardig inbouwapparatuur en een moderne, nette badkamer maken het geheel helemaal compleet. Vanuit de woonkamer geniet je van een fantastisch uitzicht op de rustige, fraai onderhouden binnentuin, terwijl het zonnige balkon op het zuiden een heerlijke plek biedt om buiten te zitten.

Dankzij het recente bouwjaar en energielabel A+ woon je energiezuinig en met maximaal comfort. Extra praktisch is de eigen overdekte parkeerplek die zich direct onder de woning bevindt. Verder beschik je ook nog een eigen berging!

Gelegen in het geliefde ’t Zand-West profiteer je van een perfecte balans tussen rust en bereikbaarheid. Op loopafstand vind je het uitgestrekte Maximapark, waar je kunt sporten, wandelen of gewoon ontspannen in de natuur. Scholen, winkels en sportfaciliteiten liggen binnen handbereik, terwijl station Terwijde en de uitvalswegen A2 en A12 zorgen voor uitstekende verbindingen naar Utrecht, Amsterdam en de rest van de Randstad.

Kortom: deze woning biedt alles wat je zoekt!

DUURZAAMHEID & ENERGIELABEL
Het appartement beschikt over een energielabel A+ en is geldig tot februari 2032.

DE OMGEVING
De woning ligt in de wijk 'T Zand-West in Utrecht die bekend staat om de gunstige ligging ten opzichte van het centrum van Leidse Rijn. Het is een aantrekkelijke woonwijk voor mensen die dicht bij het centrum willen wonen, maar ook de rust van een woonwijk waarderen. Je woont hier te midden van gevarieerde architectuur met een mix van moderne en traditionele bouwstijlen. Het Zand-West is omgeven door groene gebieden, zoals het uitgebreide Maximapark wat ruime mogelijkheden biedt om te sporten, te ontspannen en te genieten van natuur. Alle dagelijkse voorzieningen zoals scholen, winkels en sportfaciliteiten zijn in de directe omgeving binnen handbereik. Uiteraard is de bereikbaarheid hier optimaal met o.a. het station van Terwijde en de uitvalswegen A2 en A12 binnen enkele minuten.

INDELING & VOORZIENINGEN
Gemeenschappelijk entree:
Via de nette, gemeenschappelijke entree betreed je het gebouw, voorzien van brievenbussen, intercomsysteem, trapopgang en lift. Het pand is duurzaam gebouwd, uitstekend geïsoleerd en energiezuinig, wat bijdraagt aan een comfortabel en toekomstbestendig woonklimaat. Bij het appartement hoort een eigen berging en een privéparkeerplaats op het afgesloten terrein.

Begane grond:
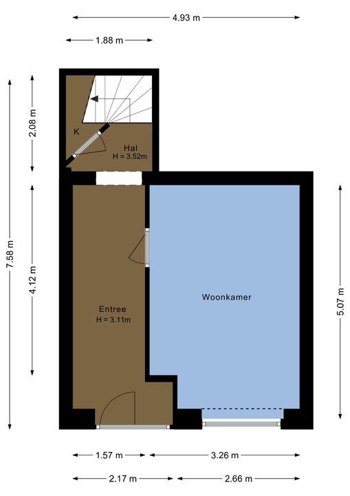
Via eigen entree beschikbare ruimte, welke je zelf kan inrichten als werk-/hobbyruimte of als eigen praktijkruimte voorzien van lamelparket en ramen tot aan de grond, waardoor er veel lichtinval binnen komt. Via de hal en trapopgang ga je naar de eerste verdieping.

Eerste verdieping
Lichte, ruime woonkamer voorzien een openslaande deuren, welke toegang geeft tot het zonnige balkon. De woonkamer is voorzien van een lichte lamelparket en strak afgewerkte wanden. Open luxe keuken voorzien van alle inbouwapparatuur waaronder een inductiekookplaat, afzuigkap, vaatwasser, koel-/vriescombinatie en combi oven/magnetron. Via de hal ga je naar de twee ruime slaapkamers en badkamer. De badkamer is voorzien van een dubbele wastafel met meubel en douchecabine. Er is een apart toilet in de gang. De twee slaapkamers zijn tevens voorzien van een lamelparket en hebben grote ramen tot aan de grond, zodat er veel licht binnenkomt.

KENMERKEN & BIJZONDERHEDEN
• Woonoppervlak ca.: 123 m²;
• Aantal kamers: 4 (waarvan 3 slaapkamers);
• Bouwjaar: 2022;
• Warm water en verwarming middels stadsverwarming;
• Energielabel A+;
• Goed gesitueerd ten opzichte van uitvalswegen en op korte afstand van het centrum en centraal station;
• Zonnig balkon op het zuiden;
• Gratis parkeren op de openbare weg of op je eigen parkeerplaats;
• VvE is actief, de servicekosten bedragen thans € 193,- per maand;
• Oplevering in overleg.

Kenmerken

Overdracht

Prijs
€ 650.000 k.k.
Bijdrage VVE
€ 193
Status
Beschikbaar
Oplevering
In overleg

Bouw

Soort appartement
Galerijflat
Woonlaag
1
Soort bouw
Bestaande bouw
Bouwjaar
2022
Onderhoud binnen
Goed
Onderhoud buiten
Goed

Oppervlakten en inhoud

Woonoppervlakte
123m²
Inhoud
365m³

Indeling

Aantal kamers
4
Aantal slaapkamers
3
Aantal badkamers
1
Aantal verdiepingen
2
Voorzieningen
Mechanische ventilatie, Zonnepanelen, Natuurlijke ventilatie

Energie

Energielabel
A+
Isolatie
Volledig geisoleerd
Warm water
Stadsverwarming
Verwarming
Stadsverwarming

Buitenruimte

Balkon
Ja
Schuur
Inpandig

Plattegronden

Interesse in deze woning?
Stel een vraag of maak een bezichtigingsafspraak.

Uw bericht is naar ons verzonden. Wij nemen zo snel mogelijk contact met u op.

Sorry, we kunnen helaas niet met zekerheid vaststellen of je een mens of een geautomatiseerde bot/spammer bent. Hierdoor kunnen we het formulier dat je hebt ingevuld niet verzenden. Probeer het opnieuw of neem direct contact op met de makelaar via e-mail.

Er is iets mis gegaan met het versturen van het formulier.
Controleer of u alle velden (goed) heeft ingevoerd en probeer het nog een keer.

recaptcha
reCAPTCHA
PrivacyTerms

Vergelijkbare woningen

Filipijnen 79, Utrecht
€ 550.000 k.k.
  • Tussenwoning
  • 97m²
  • 4
Waalstraat 71, Utrecht
€ 525.000 k.k.
  • Tussenwoning
  • 85m²
  • 4
Nieuw!
Verlengde Hoogravenseweg 112, Utrecht
€ 685.000 k.k.
  • Eindwoning
  • 98m²
  • 4
van

Goedenavond 👋

Benieuwd naar de waarde van jouw huis?

Je weet het in 1 minuut. Laten we beginnen!

Wat is de reden van jouw aanvraag?
Ik wil graag...

Er zijn meerdere antwoorden mogelijk.

Wanneer wil je verhuizen?

We zijn er bijna 🎉

Om het rapport op te maken hebben we een aantal gegevens nodig

recaptcha
reCAPTCHA
PrivacyTerms

Jouw woningwaarde wordt berekend... 🚀

loading

Bedankt %name%! De woningwaarde van %address% is berekend 🥳

Check je mail voor het rapport!

success
Wat is mijn huis waard?