Padangstraat 88, 3531 TD Utrecht

Omschrijving

CHARMANTE EN GERENOVEERDE BOVENWONING (CA. 125 M2, ENERGIELABEL A) MET 5 KAMERS, HOOGWAARDIG AFWERKINGSNIVEAU EN WAANZINNIG EN ZONNIG DAKTERRAS GELEGEN OP EEN PRETTIGE LOCATIE IN LOMBOK
De verkoper van deze woning heeft deze ruwe diamant de aandacht en liefde gegeven die het verdiend met een smaakvol en duurzaam resultaat. Deze bovenwoning biedt naast enorm veel ruimte (zowel binnen als buiten) en licht een hoogwaardige afwerking met een comfort dat je vrijwel alleen terugvindt bij een nieuwbouw woning. Zo zijn alle moderne installaties aanwezig en is de woning volledig van het gas af. Doormiddel van een boiler, vloerverwarming, airco's én zonnepanelen weet jij dat je klaar bent voor de toekomst zonder in te leveren op de sfeer en karakter van een woning van begin 1900.

Het afgelopen jaar zijn kosten noch moeite gespaard deze woning volledig aan te pakken. Dankzij de aanwezigheid van grote raampartijen (in kunststof kozijnen) is er een aangenaam licht inval en gaat er nauwelijks warmte verloren. De woonverdieping is verrassend ruim opgezet en is ingedeeld in een eet- en woonkamer die kan worden afgesloten door de originele en-suite-deuren. De wanden zijn voorzien van strak stucwerk waarbij het plafond is voorzien van een sierlijke bies. Op de vloer is gekozen voor een tijdloze (PVC) vloer met vloerverwarming. Voor de kookfanaten is er een zeer riante woonkeuken aanwezig met moderne uitstraling, kookeiland en ruimte voor een grote eettafel waar je heerlijke avondjes zult beleven met vrienden of familie. De keuken is voorzien van alle benodigde en hedendaagse inbouwapparatuur.

Op de slaapverdieping is dankzij een doordachte en efficiënte indeling ruimte ontstaan voor maar liefst drie volwaardige kamers. Daarnaast is er een riante badkamer met zeer smaakvolle tegelwerk. Verder is de badkamer voorzien van een vrijstaand bad, riante inloopdouche, tweede toilet en dubbele wastafel met meubels. Daarnaast zijn er nog diverse kasten waar de aanwezige installaties keuring zijn verwerkt en is er ruimte voor een opstelplaats voor de wasmachine en droger. Vanuit de hal bereik je middels een vaste trap met elektrisch deur het waanzinnige dakterras.

Het terras van ca. 17,5 m2 geeft een fantastisch uitzicht over de wijk en het centrum van Utrecht. Daarnaast is het natuurlijk geen verrassing dat je hier de gehele dag van de zon zal kunnen genieten.

DUURZAAMHEID & ENERGIELABEL
De woning beschikt over een energielabel A welke geldig is tot maart 2036. Tijdens de recente renovatie is de woning volledig geïsoleerd in wanden en plafonds. Daarnaast is de woning volledig van het gas af en wordt de woning verwarmd doormiddel van (elektrische) vloerverwarming, airco's (met verwarmingsfunctie) en een grote elektrische boiler. Dit in combinatie met de aanwezige zonnepanelen zorgen voor een duurzaam resultaat dat zijn positieve uitwerking zal hebben op jouw portemonnee.

DE OMGEVING
Padangstraat 88 ligt op een rustige locatie van de dynamische en gewilde wijk Lombok. Op nog geen 8 minuten fietsen vind je het gezellige centrum van Utrecht en het centraal station. Diverse voorzieningen zoals supermarkten, speciaalzaken en eetgelegenheden zijn op loop- of fietsafstand bereikbaar. De dichtstbijzijnde uitvalsweg is slechts 4 minuten rijden, waardoor je ook snel de stad uit bent.

Lombok is de hipste wijk van Utrecht, direct grenzend aan het centrum. Hier vindt je een mix van gezellige cafés en restaurants, zoals Bij Bram, Koffie & Ik, Restaurant West, Pizza Beppe en meer. Voor cultuur en ontspanning liggen de Cereolfabriek, Park Oog in Al, het Landhuis en een hertenkamp op loopafstand.

De wijk trekt starters, doorstromers en jonge gezinnen door de centrale ligging, karakteristieke straatjes en nabijheid van speeltuinen zoals het populaire Bankaplein. Voor sport, ontspanning en dagelijkse voorzieningen zijn ook het Majellapark, Molenpark en verschillende basisscholen dichtbij. Openbaar vervoer en de binnenstad zijn snel bereikbaar, en met de auto zit u binnen 10 minuten op de A2.

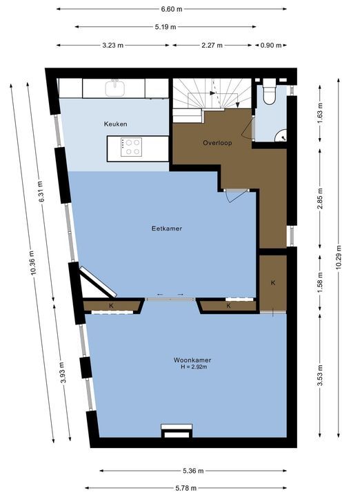
INDELING & VOORZIENINGEN
Begane grond:
Entree met meterkast en vaste trap naar eerste verdieping

Eerste verdieping:
Overloop met apart toilet. Toegang tot de riante en lichte eet kamer, aansluitend bevindt zich de open keuken voorzien van inbouwapparatuur. Vanuit de eetkamer kom je via de openslaande deuren naar de woonkamer, welke is voorzien van inbouwkasten.

Tweede verdieping:
Overloop met apart toilet en toegang tot badkamer, alle 3 de slaapkamers en 3 ingebouwde kasten (1 meterkast). De badkamer heeft een ligbad, inloopdouche en dubbele wastafel. De 3 slaapkamer zijn riant en hebben veel lichtinval.

Dakterras:
Geweldig dakterras van bijna 18 m2, waar je een mooi uitzicht en lekker kan genieten van de zon en een drankje.

KENMERKEN & BIJZONDERHEDEN
• Woonoppervlak ca.: 125 m²;
• Aantal kamers: 5 (waarvan 3 slaapkamers);
• Bouwjaar: 1904, grondige renovatie en volledige modernisatie in 2025/2026;
• Warm water middels elektrische boiler, verwarming via (elektrische) vloerverwarming en airco's;
• Energielabel A (geldig tot maart 2036);
• Goed gesitueerd ten opzichte van uitvalswegen en op korte afstand van het centrum en centraal station;
• Waanzinnig en ruim dakterras met fantastisch uitzicht en de hele dag zon;
• Betaald parkeren of met vergunning op de openbare weg;
• VvE is actief doormiddel van een inschrijving KVK, verdere activatie ligt bij de VVE.
• Oplevering in overleg.

Pandangstraat 80 te Utrecht

Kenmerken

Overdracht

Prijs
€ 650.000 k.k.
Status
Beschikbaar
Oplevering
In overleg

Bouw

Soort appartement
Bovenwoning, Appartement
Woonlaag
0
Soort bouw
Bestaande bouw
Bouwjaar
1904
Onderhoud binnen
Goed
Onderhoud buiten
Goed

Oppervlakten en inhoud

Woonoppervlakte
125m²
Inhoud
464m³

Indeling

Aantal kamers
4
Aantal slaapkamers
3
Aantal badkamers
1
Aantal verdiepingen
2
Voorzieningen
TV-Kabel, Airconditioning, Zonnepanelen

Energie

Energielabel
A
Isolatie
Volledig geisoleerd
Warm water
Elektrische boiler eigendom
Verwarming
Vloerverwarming geheel, Elektrische verwarming

Buitenruimte

Ligging
Aan rustige weg

Plattegronden

Interesse in deze woning?
Stel een vraag of maak een bezichtigingsafspraak.

Uw bericht is naar ons verzonden. Wij nemen zo snel mogelijk contact met u op.

Sorry, we kunnen helaas niet met zekerheid vaststellen of je een mens of een geautomatiseerde bot/spammer bent. Hierdoor kunnen we het formulier dat je hebt ingevuld niet verzenden. Probeer het opnieuw of neem direct contact op met de makelaar via e-mail.

Er is iets mis gegaan met het versturen van het formulier.
Controleer of u alle velden (goed) heeft ingevoerd en probeer het nog een keer.

recaptcha
reCAPTCHA
PrivacyTerms

Vergelijkbare woningen

Mierikswortelstraat 60, Utrecht
€ 550.000 k.k.
  • Tussenwoning
  • 94m²
  • 2
Nieuw!
Rolderdiephof 150, Utrecht
€ 639.000 k.k.
  • Portiekflat
  • 85m²
  • 2
van

Goedemorgen 👋

Benieuwd naar de waarde van jouw huis?

Je weet het in 1 minuut. Laten we beginnen!

Wat is de reden van jouw aanvraag?
Ik wil graag...

Er zijn meerdere antwoorden mogelijk.

Wanneer wil je verhuizen?

We zijn er bijna 🎉

Om het rapport op te maken hebben we een aantal gegevens nodig

recaptcha
reCAPTCHA
PrivacyTerms

Jouw woningwaarde wordt berekend... 🚀

loading

Bedankt %name%! De woningwaarde van %address% is berekend 🥳

Check je mail voor het rapport!

success
Wat is mijn huis waard?