Narcisstraat 37, 3551 EP Utrecht

Omschrijving

VERZORGDE & COMFORTABELE BENEDENWONING (CA. 46 M2, ENERGIELABEL C) MET TWEE KAMERS EN GEZELLIGE STADSTUIN GELEGEN OP EEN PRETTIGE LOCATIE IN DE BLOEMENBUURT OP KORTE AFSTAND VAN HET CENTRUM
Deze gezellige en efficiënt ingedeelde benedenwoning voorziet in alle elementen die passen bij de startende koper die op zoek is naar de gemoedelijke woonomgeving met de reuring van de stad binnen handbereik. De Bloemenbuurt is een van de populairdere buurten voor starters. Dat is niet in de laatste plaats vanwege de goede bereikbaarheid van het gezellige stadscentrum want ook in de directe omgeving vind je een tal van gezellige (dag)horeca en andere hotspots. De buurt is gemoedelijk en er is een groot aanbod aan (lokale)winkels voor je dagelijkse boodschappen.

Het appartement maakt onderdeel uit van een kleinschalig gebouw met twee appartementen. Dankzij de efficiente indeling voelt de woning in werkelijkheid ruimer aan dan je op basis van de woonoppervlakte zult vermoeden. De woning is gelegen op de begane grond en verkeert in verzorgde staat van onderhoud. De wanden zijn voorzien van strak stucwerk en voorzieningen als keuken en sanitair zijn netjes en functioneel. De woning is ingedeeld met een slaapkamer aan de voorzijde waarbij er is gekozen voor een optimale leefruimte in de woonkamer met open keuken. Vanuit de keuken bereik je de gezellig stadstuin op het noordwesten wat inhoud dat er in de middag en avond voornamelijk zon zal zijn. De achtertuin is leuk opgezet met een overkapping en praktische bergruimte.

Er is een actieve VVE waarvan een onderhoudsplan, bankrekening en opstalverzekering deel van uit maken. Al met al een degelijke start voor jou als nieuwe bewoner van deze leuke starterswoning.

DUURZAAMHEID & ENERGIELABEL
De woning heeft een energielabel C (geldig tot november 2035) en is voorzien van dubbele beglazing.

DE OMGEVING
De Bloemenbuurt, ook wel bekend als de 2e Daalsebuurt, is een geliefde en karaktervolle wijk met een gemoedelijke, bijna dorpse sfeer. De buurt kenmerkt zich door fraaie gevels, rustige straten en een prettige mix van bewoners, wat zorgt voor een fijne woonomgeving.

Op loopafstand ligt de levendige Amsterdamsestraatweg met een breed aanbod aan winkels, supermarkten, horeca en hippe koffietentjes. Voor ontspanning en groen zijn het Julianapark en het nabijgelegen werkspoorgebied eenvoudig bereikbaar. Hier komen natuur, recreatie en stedelijke dynamiek samen.

De ligging is erg centraal: de binnenstad en Utrecht Centraal zijn in ongeveer 10 minuten fietsen te bereiken. Ook het openbaar vervoer is uitstekend geregeld met bushaltes en station Zuilen in de directe omgeving. Met de auto ben je binnen enkele minuten op de A2 of A27.

INDELING & VOORZIENINGEN
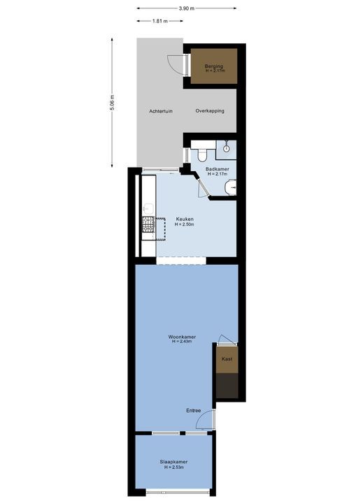
Bij binnenkomst betreedt u de entree/hal, die toegang biedt tot de lichte en verrassend ruime woonkamer. Aangrenzend bevindt zich de nette, uitgebouwde keuken met volop opbergruimte. De keuken is voorzien van diverse inbouwapparatuur en een dakraam dat zorgt voor extra veel daglicht. Via de schuifdeur in de keuken is er directe toegang tot de tuin.

De tuin beschikt over een overdekt gedeelte en een praktische stenen berging. De moderne badkamer is strak afgewerkt en uitgerust met een toilet, inloopdouche en vaste wastafel. De slaapkamer bevindt zich aan de voorzijde van de woning en vormt een prettige, rustige plek om te ontspannen.

KENMERKEN & BIJZONDERHEDEN
• Woonoppervlak ca.: 46 m²;
• Aantal kamers: 2 (waarvan 1 slaapkamer);
• Bouwjaar: 1910;
• Warm water en verwarming middels gezamenlijke Cv-ketel (2023);
• Energielabel C (geldig tot november 2035);
• Voor beide woningen in het gebouw is één systeem en contract ten aanzien van GWE, kosten worden verrekend middels een tussenmeter;
• Goed gesitueerd ten opzichte van het openbaar vervoer (station Utrecht Zuilen & Utrecht Centraal);
• De tuin is deels overdekt, waardoor er altijd zowel een zonnige als een schaduwrijke plek te vinden is;
• Betaald parkeren of met vergunning op de openbare weg;
• De servicekosten bedragen thans € 50,-- per maand;
• Verkoper heeft de woning zelf niet bewoond, hiervoor worden aanvullende clausules opgenomen (ouderdoms-, asbest- en niet zelfbewoningsclausule), derhalve zijn er geen lijst van zaken en vragenlijst beschikbaar;
• Oplevering in overleg.

Kenmerken

Overdracht

Prijs
€ 335.000 k.k.
Bijdrage VVE
€ 50
Status
Beschikbaar
Oplevering
In overleg

Bouw

Soort appartement
Benedenwoning, Appartement
Woonlaag
1
Soort bouw
Bestaande bouw
Bouwjaar
1910
Onderhoud binnen
Goed
Onderhoud buiten
Goed

Oppervlakten en inhoud

Woonoppervlakte
46m²
Inhoud
171m³

Indeling

Aantal kamers
2
Aantal slaapkamers
1
Aantal badkamers
1
Aantal verdiepingen
2
Voorzieningen
Mechanische ventilatie, TV-Kabel, Natuurlijke ventilatie

Energie

Energielabel
C
Isolatie
Dubbel glas
Warm water
C.V.-ketel
Verwarming
C.V.-ketel
Ketel
(2023, Combi-ketel, Eigendom)

Buitenruimte

Ligging
Aan rustige weg, In woonwijk
Tuin
Achtertuin
Schuur
Aangebouwd steen
Faciliteiten schuur
Voorzien van elektra

Plattegronden

Interesse in deze woning?
Stel een vraag of maak een bezichtigingsafspraak.

Uw bericht is naar ons verzonden. Wij nemen zo snel mogelijk contact met u op.

Sorry, we kunnen helaas niet met zekerheid vaststellen of je een mens of een geautomatiseerde bot/spammer bent. Hierdoor kunnen we het formulier dat je hebt ingevuld niet verzenden. Probeer het opnieuw of neem direct contact op met de makelaar via e-mail.

Er is iets mis gegaan met het versturen van het formulier.
Controleer of u alle velden (goed) heeft ingevoerd en probeer het nog een keer.

recaptcha
reCAPTCHA
PrivacyTerms

Vergelijkbare woningen

Jutfaseweg 223 25, Utrecht
€ 350.000 k.k.
  • Benedenwoning
  • 44m²
  • 1
Jutfaseweg 173, Utrecht
€ 389.000 k.k.
  • Maisonnette
  • 56m²
  • 1
Zagrebstraat 283, Utrecht
€ 350.000 k.k.
  • Portiekwoning
  • 48m²
  • 1
van

Goedenavond 👋

Benieuwd naar de waarde van jouw huis?

Je weet het in 1 minuut. Laten we beginnen!

Wat is de reden van jouw aanvraag?
Ik wil graag...

Er zijn meerdere antwoorden mogelijk.

Wanneer wil je verhuizen?

We zijn er bijna 🎉

Om het rapport op te maken hebben we een aantal gegevens nodig

recaptcha
reCAPTCHA
PrivacyTerms

Jouw woningwaarde wordt berekend... 🚀

loading

Bedankt %name%! De woningwaarde van %address% is berekend 🥳

Check je mail voor het rapport!

success
Wat is mijn huis waard?